Slideshow

Slide 1 selected
Fast and Furious Monaco

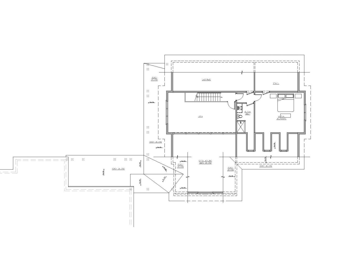
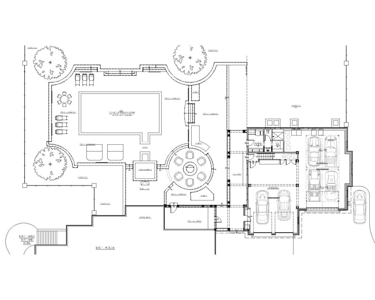
Conceived at the height of the COVID-19 pandemic and designed entirely via Zoom, the Fast and Furious Monaco Estate is a truly unique residential project that blends European elegance with high-performance American engineering. Led by architect Seth Ballard, this remote collaboration resulted in a luxury compound built around a show-stopping 12-car, geothermal-powered garage.

The garage—connected to the original 3-car structure via a covered breezeway—frames a private courtyard featuring a heated swimming pool, hot tub, fire pit, and open-air pavilion. Above the garage sits a lofted man cave, perfect for entertaining and displaying the owner’s collection of 1,000-horsepower supercars.

Interior finishes channel a refined French-Monégasque aesthetic, especially in the spa-inspired bath and elegant guest suite. Motorsport-inspired detailing adds immersive character throughout the garage and loft spaces.

Designed for complete energy independence, the estate is powered by a geothermal heating and cooling system and a solar energy array, making this a fully off-grid luxury retreat.

Design Highlights:

  • 12-car luxury garage with geothermal HVAC
  • Solar-powered off-grid energy system
  • Monaco-inspired interiors and spa-like guest suite
  • Lofted man cave overlooking the garage
  • Private courtyard with pool, hot tub, pavilion, and fire pit